$615,221
$629,900
2.3%For more information regarding the value of a property, please contact us for a free consultation.
4 Beds
2.5 Baths
3,075 SqFt
SOLD DATE : 11/13/2025
Key Details
Sold Price $615,221
Property Type Single Family Home
Sub Type Single Family Residence
Listing Status Sold
Purchase Type For Sale
Square Footage 3,075 sqft
Price per Sqft $200
Subdivision Aster
MLS Listing ID 225039759
Sold Date 11/13/25
Bedrooms 4
Full Baths 2
HOA Fees $30/ann
HOA Y/N Yes
Year Built 2025
Lot Size 0.370 Acres
Lot Dimensions 0.37
Property Sub-Type Single Family Residence
Source Columbus and Central Ohio Regional MLS
Property Description
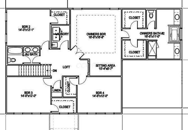
The Erie floor plan includes 4 bedrooms, 2.5 bathrooms, and full basement with additional bathroom rough-in. Covered front porch leads into foyer with tray ceiling. Study and formal dining room. Mud room off 2 car garage. Great room with fireplace and additional 4' bump. Deluxe kitchen with open casual dining space and large walk-in pantry. 2nd floor has 4 bedrooms, laundry room, and sitting area. Owners bedroom with 9' tray ceiling, two walk-in closets and large bathroom.
Location
State OH
County Union
Community Aster
Area 0.37
Direction From 270 North, exit to Sawmill Road. Go north on Sawmill Road. Turn left on Hard Road. Turn right onto OH-257 N/Riverside Drive. At the traffic circle take the 3rd exit onto Home Rd, which becomes Blaney Road. Turn left onto Aster Way.
Rooms
Other Rooms Den/Home Office - Non Bsmt, Dining Room, Eat Space/Kit, Great Room
Basement Full
Dining Room Yes
Interior
Heating Forced Air
Cooling Central Air
Equipment Yes
Laundry 2nd Floor Laundry
Exterior
Parking Features Garage Door Opener, Attached Garage
Garage Spaces 2.0
Garage Description 2.0
Total Parking Spaces 2
Garage Yes
Building
Level or Stories Two
Schools
High Schools Dublin Csd 2513 Fra Co.
School District Dublin Csd 2513 Fra Co.
Others
Tax ID 17-0010031-1490
Acceptable Financing VA, FHA, Conventional
Listing Terms VA, FHA, Conventional
Read Less Info
Want to know what your home might be worth? Contact us for a FREE valuation!

Our team is ready to help you sell your home for the highest possible price ASAP

"My job is to find and attract mastery-based agents to the office, protect the culture, and make sure everyone is happy! "



